
Ersaş Systems, estetiği ve teknik performansı dengede sunan Fortis 65 serisiyle modern yapılara zarif bir çözüm getiriyor.
Metropol projelerinin gerektirdiği termal standartlara uygun olarak geliştirilen Fortis 65, çağdaş mimarinin sade çizgilerini optimum ısı yalıtımıyla bir araya getiriyor.
.
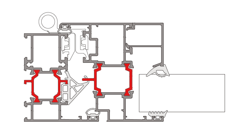
Az sayıda köşe takozuyla tasarlanan sistem, tüm serilerde ortak takoz kullanımı sayesinde stok, sevkiyat ve depo maliyetlerini azaltır. Standart makine parkuru ayarları üretim sürecini hızlandırırken, Euro ve PVC kanat yapısı tüm mekanizma markalarının aksesuarlarıyla uyumlu kullanım imkânı sunar.
Gridli alternatif kanat profilleriyle sabit ve açılır alanlarda aynı çıta profili kullanılabilir; böylece cam yüzeylerde modern, hemyüz bir görünüm elde edilir. 24 mm bariyer yapısı, TS 925 termal ısı yönetmeliği standartlarını karşılayarak metropol ve büyük şehirlerde kullanım için ideal çözümler sunar.
Fortis 65, optimum termal performansı, minimalist formu ve zarif görünümüyle ticari, endüstriyel yapılar ve konutlar için güvenilir bir tercihtir. Estetiğin ve performansın buluştuğu bu sistem, Ersaş Systems kalitesiyle çağdaş mimarilerin yeni standardını belirliyor.
Az sayıda köşe takozuyla tasarlanan sistem, tüm serilerde ortak takoz kullanımı sayesinde stok, sevkiyat ve depo maliyetlerini azaltır. Standart makine parkuru ayarları üretim sürecini hızlandırırken, Euro ve PVC kanat yapısı tüm mekanizma markalarının aksesuarlarıyla uyumlu kullanım imkânı sunar.
Gridli alternatif kanat profilleriyle sabit ve açılır alanlarda aynı çıta profili kullanılabilir; böylece cam yüzeylerde modern, hemyüz bir görünüm elde edilir. 24 mm bariyer yapısı, TS 925 termal ısı yönetmeliği standartlarını karşılayarak metropol ve büyük şehirlerde kullanım için ideal çözümler sunar.
Fortis 65, optimum termal performansı, minimalist formu ve zarif görünümüyle ticari, endüstriyel yapılar ve konutlar için güvenilir bir tercihtir. Estetiğin ve performansın buluştuğu bu sistem, Ersaş Systems kalitesiyle çağdaş mimarilerin yeni standardını belirliyor.

| TEKNİK ÖZELLİKLER | |
|---|---|
| Kasa Derinliği | 65 mm |
| Kanat Derinliği | 73,8 mm |
| Profil Et Kalınlığı | 1,5 mm - 1,8 mm |
| Maksimum Cam Kalınlığı | Kasa: 48 mm |
| Isı Bariyerleri | 24 mm |
| Isı Yalıtım Değeri (Uf) | 2,30 W/m²K - 2,95 W/m²K |
| PERFORMANS DEĞERİ | |
|---|---|
| Rüzgar Yükü Dayanımı | Class C5 (2000 Pa) |
| Su Sızdırmazlığı | Class E1050 (1050 Pa) |
| Hava Geçirgenliği | Class 4 (600 Pa) |
| Akustik Performans | 36 dB |
Isı Grafiği Tablosu

| Açılım Tipleri | Kapı | Pencere |
|---|---|---|
| İçe Açılır | ✓ | ✓ |
| Dışa Açılır | ✓ | ✓ |
| Vasistas | ✓ | |
| Çift Eksen Açılım | ✓ | ✓ |
| PVC Aksesuar İçin Kanat | ✓ | ✓ |
| Çek & Sür | ✓ | |
| Katlanır | ✓ |
Genel Merkez
İncirlik Sk. No: 11-15, PK 34050
Eyüpsultan – İstanbul -Türkiye
E-posta: [email protected]
Tel: 0 (212) 674 12 14
Fax: 0 (212) 674 12 17
Fabrika
Tel: 0 (282) 683 20 22
Fax: 0 (282) 683 20 28

Ersaş Systems, bir 